Dossier comercial completo
25
€
- Presupuesto de la vivienda, terreno y obra civil.
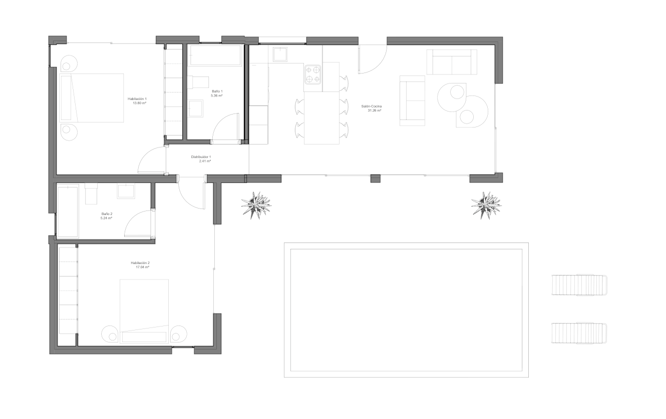
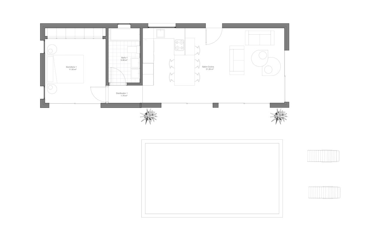
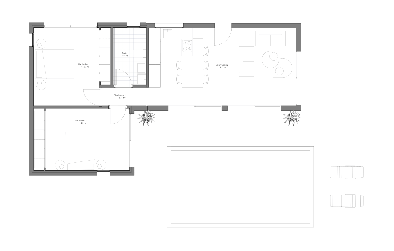
- Planos de distribución, renders y dossier comercial
Si decides continuar con el proyecto después de revisar nuestro dossier comercial, el costo del mismo será descontado del precio del plan que elijas.
Me interesa















